Bagi banyak orang di masyarakat teknik sipil, tentu tidak banyak yang tersinggung jika aku menyatakan diri unggul di bidang teoritis rekayasa struktur, dibandingkan jika kata teoritisnya dihilangkan. Apalagi ada dukungan dari produk teoritis yang kubuat (buku struktur baja), yang sudah banyak tersebar di kampus-kampus maupun kantor konsultan rekayasa yang ada. Bahkan bagi seorang structural engineer yang menggeluti ilmu struktur baja, bisa dikatakan tidak up-dated jika belum membaca buku-buku tersebut. Jujur, bukuku tentang struktur baja, adalah buku pertama berbahasa Indonesia yang membahas secara detail SNI baja terbaru (2015). Bahkan bisa dijadikan buku pembanding untuk menguasai SNI tersebut (maklum buku tersebut dibuat mengacu langsung AISC 2010 yang merupakan rujukan utama dari SNI baja kita yang terbaru).
Kata teoritis perlu ditekankan, karena aku lebih banyak duduk di meja atau di depan kelas mengajar di kampus, dibanding lapangan (site project). Dalam hal ini, cocoknya aku disebut golongan engineer teoritis, adapun di sisi lain adalah golongan engineer praktisi, yang sehari-hari terlibat pelaksanaan di project.
Di sini, di Indonesia ada kesan bahwa engineer yang sesungguhnya itu adalah golongan engineer praktisi. Tentang itu, aku sering memperhatikan orang-orang proyek memberi kesan sinis pada golongan engineer teoritis, khususnya ketika petunjuk-petunjuk darinya terkesan bertele-tele.
Seperti diketahui, banyak golongan engineer teoritis mempunyai gelar akademik yang berderet-deret (mungkin termasuk aku juga 😀 ). Bagi awam pemilik uang (owner), adanya banyak gelar dapat menjadi petunjuk bahwa mereka layak disebut ahli dan punya idealisme tinggi terhadap mutu. Oleh sebab itu wajar jika di antara mereka (engineer teoritis) banyak yang diangkat menjadi reviewer (pengawas) oleh owner, untuk mempertahankan mutu pekerjaan konstruksi yang dikerjakannya. Karena jadi reviewer atau pengawas itulah maka petunjuk atau nasehatnya harus didengar. Jika tidak, bisa-bisa approval pembayaran tidak keluar. 😀
Dalam konteks itulah, maka ada anggapan bahwa engineer teoritis yang terlibat di proyek adalah sekedar pelengkap birokratis (administrasi), adapun pelaksana rekayasa yang sejati adalah engineer praktisi. Itu berarti kalau mengaku unggul di bidang teoritis, bukanlah sesuatu yang prestise, sehingga bukan sesuatu yang perlu diperebutkan. 😀
Padahal jika dipikirkan secara mendalam, yang namanya teoritis maupun praktisi, bukan sesuatu yang dapat dibandingkan. Itu bisa terjadi karena keduanya saling melengkapi. Itulah mengapa ada konsultan perencana (mewakili unsur teoritis) dan kontraktor pelaksana (mewakili unsur praktis lapangan).
Tidak ada pelaksanaan konstruksi yang dapat mengabaikan aspek teoritis. Lihat saja, setiap bangunan konstruksi harus memenuhi code design yang berlaku. Code design itu khan produk dari engineer yang kuat di bidang teori, yang bisa menjelaskan mengapa sesuatu itu diperlukan atau tidak. Hanya sayangnya, di Indonesia itu tidak ada design code yang asli negeri sendiri, kebanyakan SNI yang dibuat hanya sekedar mencontek (menerjemahkan bulat-bulat) produk manca negara. Itu yang menyebabkan mengapa kemampuan menjelaskan bahwa sesuatu itu perlu, atau tidak secara teoritis, bukan sesuatu penting. Adapun yang penting, adalah apakah sesuatu itu ada di code, atau tidak. Jika ada di code, maka mau tidak mau, harus diikuti. Jika tidak ada, bisa tidak mendapatka izin untuk dikerjakan.
Dengan kondisi seperti itu, maka untuk pekerjaan-pekerjaan konstruksi yang pernah dikerjakan atau ada contohnya, maka tidak ada masalah yang ditemukan. Semua dapat berjalan normal. Nggak perlu itu engineer teoritis terlibat. Tetapi bagi pekerjaan konstruksi yang belum pernah ada sebelumnya, dan tidak ada yang dapat dijadikan contoh untuk ditiru, maka sesuatu yang akan dikerjakan perlu argumentasi yang kuat, bahwa yang dipilih itu adalah yang terbaik. Adapun argumentasi yang baik, perlu dasar teori yang kuat. Itu bisa terjadi karena tidak ada pengalaman yang dapat diungkapkan untuk sesuatu yang belum pernah dilakukan sebelumnya. Nah disitulah engineer teoritis unggul untuk dilibatkan.
Ah masak pak Wir, contohnya apa ?
Kebetulan ini ada yang bisa aku ceritakan, terkait dengan uraianku di atas. Kasusnya sebenarnya sudah lama, pertengahan tahun lalu. Tapi kalau waktu itu aku ceritakan, maka bisa saja dianggap hanya sekedar cerita, karena tidak ada buktinya. Tahun ini, kasus yang dimaksud sudah berhasil terlaksana, ada buktinya. Oleh sebab itu ada baiknya saya ungkapkan saja, bukti bahwa engineer teoritis itu melengkapi engineer praktisi. Proyek yang kasusnya aku terlibat adalah Light Rail Transit (LRT) Palembang, yang merupakan proyek LRT pertama di Indonesia, lihat Gambar 1.

Jalur atau rute LRT Palembang di atas ternyata sejajar, bahkan berada di sepanjang jalan-jalan utama kota Palembang. Padahal tahu sendiri, jalannya sendiri sudah sangat padat lalu-lintasnya. Oleh sebab itu, jalur rute LRT berdiri di atas tanah dengan bertumpu pada pilar-pilar raksasa yang dibangun di tengah-tengah jalan utama tersebut.

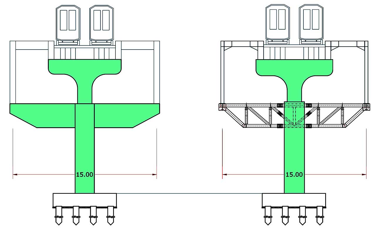
Dapat dibayangkan bahwa dampak terbesar pembangunan LRT Palembang adalah kepadatan lalu-lintas yang akan menimbulkan kemacetan parah. Jika itu terjadi selama proses pembangunan (bisa lebih dari satu tahun) tentu akan menimbulkan masalah sosial dan ekonomi yang tidak bisa disepelekan. PT Waskita Karya Tbk, selalu kontraktor utama dalam proyek tersebut menyadari bahwa hal itu perlu dipikirkan secara serius. Adapun PT. Perencana Djaja selaku perencana utama, telah merencanakan sistem strukturnya, pier dan pier head, juga PC girder terbuat dari beton semua. Dari hasil kajian, ternyata tidak semua konsep perencanaan yang telah dibuat, dapat dilaksanakan, khususnya di bagian bangunan stasiun, lihat Gambar 3.

Pada bangunan stasiun diperlukan lengan kantilever dari pier yang menjorok ke luar. Mengkaji problem kemacetan yang terjadi dengan pembangunan pier di tengah, maka tentu dapat dibayangkan jika diperlukan pengecoran lengan kantilever tersebut tentunya akan menimbulkan kemacetan yang lebih parah lagi. Membayangkan permasalahan sosial / ekonomi yang timbul, maka PT Waskita memutuskan bahwa sistem beton bertulang cor di tempat, tidak bisa diaplikasikan. Bagian lengan di Gambar 3 harus digantikan konstruksi baja, yang dapat dipasang cepat saat malam hari, tanpa menimbulkan dampak kemacetan parah. Permintaan itu tentunya menarik, kebiasaan yang ada, lengan kantilever semuanya dari beton. Jadi jika diganti dengan lengan baja, bagaimana detailnya ?
Karena waktu yang mendesak, maka solusinya adalah memanggil kontraktor spesialis baja untuk mengatasinya. Nggak tahu, seberapa banyak kontraktor spesialis yang telah dipanggil, yang jelas mencari bagaimana detail konstruksi yang andal yang dapat menyambungkan lengan kantilever baja dengan pier beton, adalah masalah perencanaan yang harus dicarikan solusinya.
Nggak ada hujan, nggak ada panas, mungkin juga karena aku menulis buku struktur baja dan masalah-masalah struktur, maka ada yang mengkontakku untuk menanyakan tentang kasus di atas, yaitu apakah mungkin menyambung lengan konstruksi baja dengan pier beton. Atas pertanyaan itu, yang sepintas ditanyakan mahasiswa ke aku (dosen), maka aku jawab “ya jelas bisa, itu gampang !“. Eh ternyata ditanggapi serius disuruh membuktikannya. Ternyata ini permintaan serius, kasus nyata dari suatu proyek besar yang sedang dikerjakan. Itulah awal mulanya aku terlibat pada proyek LRT Palembang. Mereka (engineer praktisi) mengkontak aku (engineer teoritis), karena ketemu masalah yang relatif baru, yang belum pernah ada sebelumnya. Pada kondisi seperti itu, maka pengalaman tidak bisa diandalkan, yang bisa digunakan hanyalah kekuatan teori-teori dasar yang telah teruji sebelumnya.
Itu semua terjadinya tahun lalu, setelah merenung dan membaca banyak jurnal, akhirnya aku bisa memberi solusi, dan kuanggap yang terbaik tentunya. Ternyata usulan yang aku berikan ditanggapi serius oleh pihak konsultan perencana, bahkan sampai mendatangkan reviewer pihak lain untuk mengujinya, yang kebetulan aku kenal, yaitu Prof Iswandi Imran. Beberapa pertanyaan beliau terkait perencanaan lengan baja ke pier beton, dapat aku jawab dengan mantap. Pokoknya mulus begitulah. Dari diskusi yang terjadi, terkait sistem lengan baja tersebut timbul pendapat bahwa apa yang aku sampaikan itu adalah sesuatu yang memberi kesan baru, belum pernah ada sebelumnya. Padahal aku sebelumnya, melihat bahwa apa yang aku sampaikan itu biasa-biasa saja ditinjau dari teori baja yang kupelajari. Oleh karena ada kesan baru tersebutlah maka aku tertarik untuk mengungkapkannya dalam suatu jurnal ilmiah international. Ini penting sekaligus untuk membuktikan apakah ide yang aku berikan itu memang orisinil.
Pada saat penulisan jurnal ilmiah tersebut, dari studi literatur yang ada, maka paper terkait berbahasa Indonesia tidak dijumpai. Ini tentu bisa menjadi indikasi bahwa lengan kantilever tersebut memang yang pertama dibuat di Indonesia, dan istilah yang tepat digunakan adalah hybrid pier. Inilah kira-kira sistem yang aku buat.

Kalau hanya membuat dari RC Pier menjadi Hybrid Pier, maka semua engineer tentu bisa membuat gambarnya, tetapi menjelaskan mengapa Hybrid Pier bisa menggantikan RC Pier maka itulah tugas dari engineer teoritis untuk menjelaskannya. Pertama-tama tentunya ke pihak konsultan yang dibackup oleh Prof Iswandi. Selesai dengan tahap ini, maka langkah berikutnya adalah ke dunia, yaitu melalui jurnal international. Karena merasa bahwa masalah ini baru pertama di Indonesia, dan lolos penilaian Prof Iswandi, maka aku pede saja untuk mempublikasikan ke jurnal ASCE yang bereputasi, yaitu Practice Periodical on Structural Design and Construction . Tanggapannya persis seperti yang aku duga, yaitu begitu baik, bayangkan tidak lebih dari satu bulan makalah Hybrid Pier yang aku kirimkan, ternyata dapat diterima. Saat ini makalah tersebut sudah dipublikasikan secara on-line di sini.
Setahun sejak usulan rencana diajukan, tidak ada lagi kontak dengan kontraktor spesialis pelaksana. Eh beberapa hari yang lalu kontraktor yang dimaksud PT. MBBS, pak Sri Yanto mengkontak lagi. Saya pikir ada masalah, ternyata sekedar memenuhi janji untuk mengundang saya, selaku pengusul lengan baja (hybrid pier) untuk hadir menyaksikan karya teoritis yang dibuatnya, untuk membuktikan bahwa meskipun dasarnya adalah teori, tetapi jika dipikirkan secara masak ternyata dapat diwujudkan secara nyata di lapangan.
Inilah hasil bukti-bukti yang aku dapat di lapangan terkait proyek LRT Palembang.

Ternyata ada 13 stasiun yang dibangun dengan bentuk yang sama seperti di atas, hanya dibedakan dengan warna. Ini daftar warna yang aku peroleh dari kunjunganku ke sana.

Jadi bisa dibayangkan suatu desain tunggal yang aku buat ternyata dapat digunakan untuk setiap stasiun di LRT Palembang. Ini foto stasiun yang di Jakabaring.

Jadi yang hasil karya engineer teoritis, yang mana pak Wir.
Lho nggak dibaca secara detail ya, jadi hasil karyaku yang orisinil adalah bagian lengan baja, yang dapat menyatu dengan pier beton, yang aku namai sebagai Hybrid Pier. Ini foto detail lengan yang kumaksud, yang aku ambil dari stasiun yang belum diinstall secara lengkap sbb.

Demikian sekilas tentang sistem struktur baru yang diterapkan di bangunan stasiun LRT Palembang, yang terdiri dari kantilever baja dan kolom beton, yang unik adalah cara penyambungannya. Teori yang mendasari bagaimana sistem tersebut telah diungkap secara terbuka pada jurnal ilmiah internasional. Kelihatannya memang simpel, tetapi ternyata tidak banyak dijumpai pada literatur teknik yang ada. Itu semua bisa terjadi karena masalah yang ada dapat ditangani oleh engineer teoritis. Jika tidak, maka tentu saja tidak ada orang lain yang tahu, karena tidak dituliskan. Itulah pentingnya kemampuan menulis bagi seorang engineer. Sesuatu yang sepele, ternyata dapat diungkapkan dalam jurnal ber kelas dunia.
Untuk itu semua, saya mengucapkan terima kasih pada Bapak Sri Yanto, wakil direktur PT. MBBS atas kepercayaan yang diberikan untuk membantu menyelesaikan permasalahan yang timbul pada proyek tersebut. Ini foto kami bertiga bersama bapak Nyono (site manager PT. MBBS di Palembang) ketika mampir sebentar di dekat proyek, sebelum mengantar pulang ke bandara hari ini.

Atas kelancaran dan kesuksesan pelaksanaan hybrid pier, penulis juga ingin mengucapkan terima kasih kepada Bapak Efendi Djohan (PT. Perencanaan Djaja) dan Prof Iswandi Imran (Pusat Rekayasa Industri ITB), juga Bapak Totok Andi Prasetyo dan Bapak Eddy Prayitno. Semoga Tuhan berkenan membalaskan kebaikan hati bapak-bapak sekalian. Tuhan memberkati.







Tinggalkan komentar